OKB, Sachseln
Zusammenarbeit mit Jan Bollag
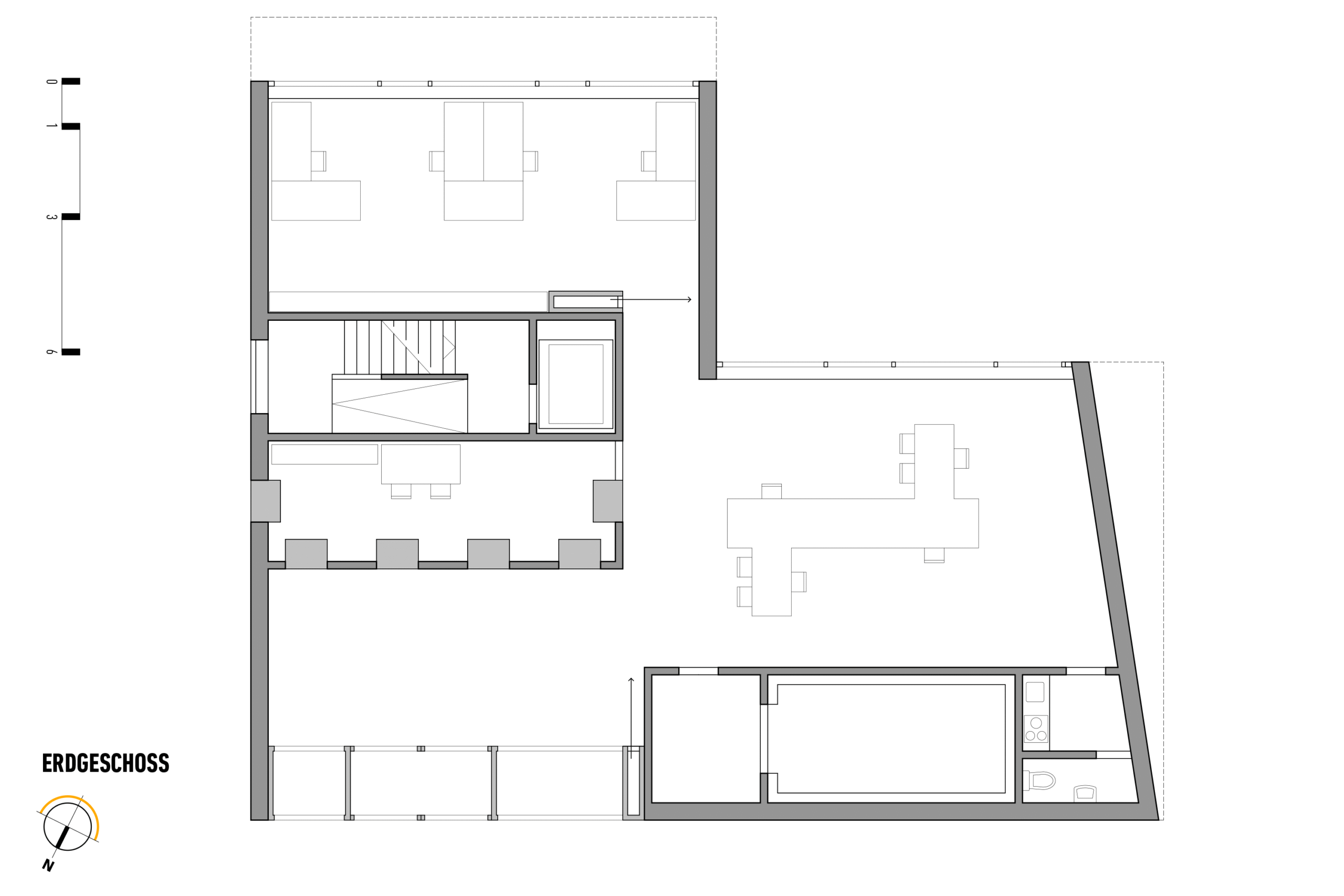
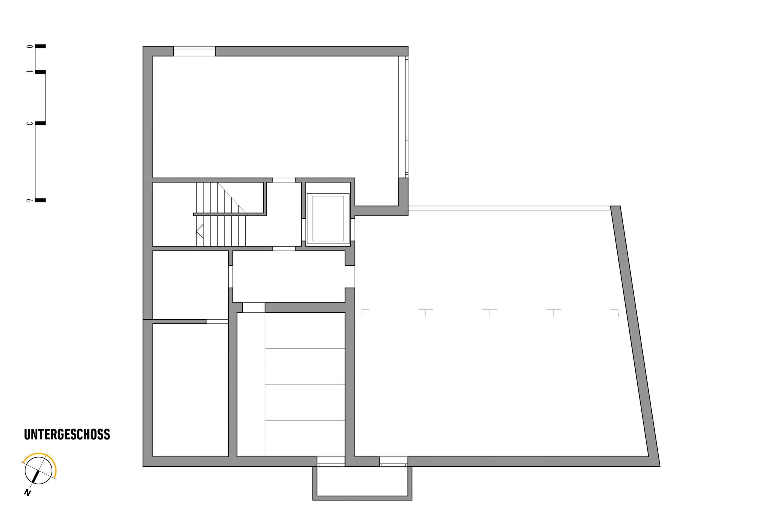
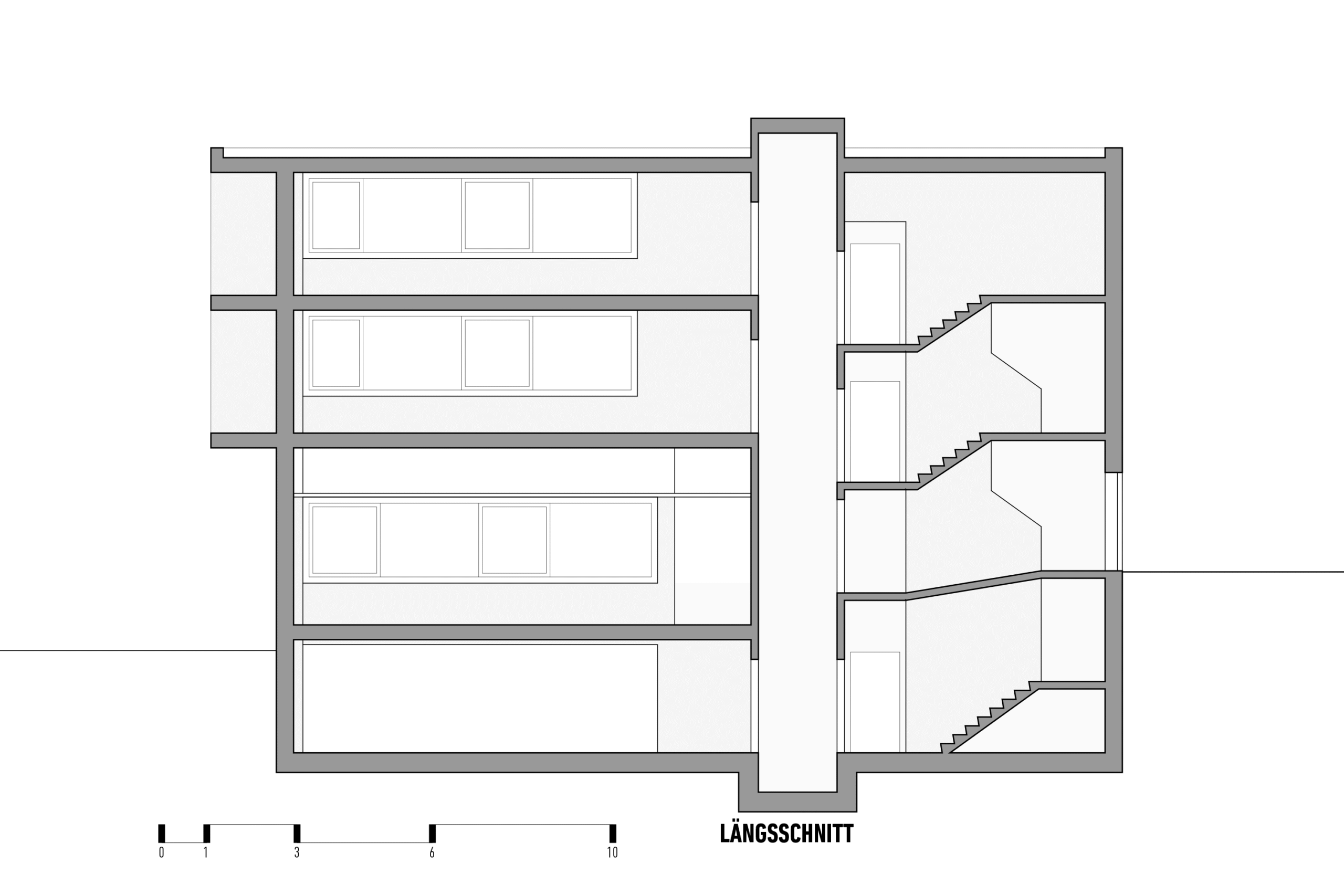
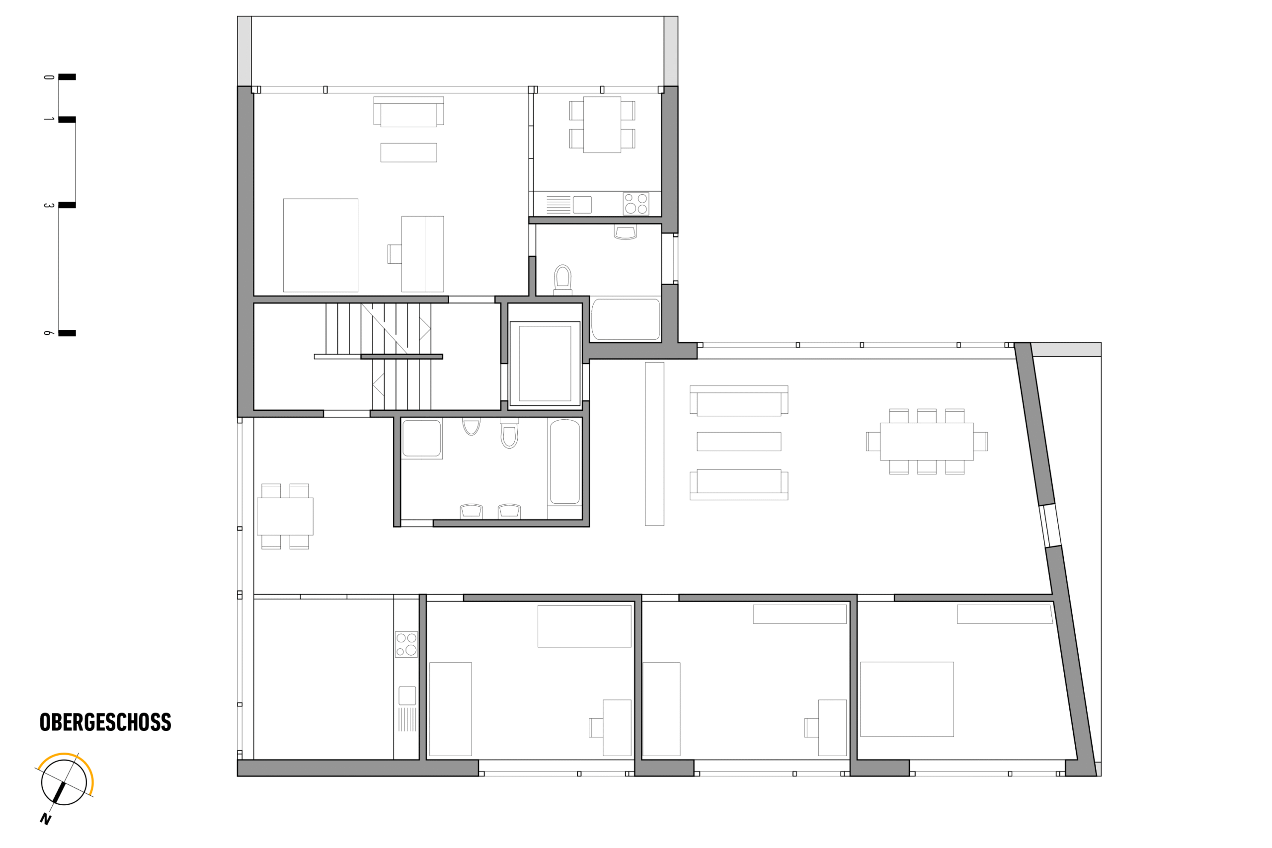
Die für das neue Bankgebäude vorgesehene, exponierte Parzelle ist sowohl Teil des Raumes um den Bach im alten Dorfkern als auch desjenigen der Kreuzungsstelle Flüeli-/Brünigstrasse. Gerade diese stark befahrene Kantonsstrasse verhindert aber, die beiden Teile als eine räumliche Ganzheit wahrzunehmen. Der Wettbewerbsbeitrag zielt folglich dahin, auf angemessene Art und Weise auf die beiden in ihrem Charakter unterschiedliche Dorfräume zu reagieren und damit diese zu festigen. Dementsprechend wird das neue Gebäude nicht als verbindendes Element, sondern als Abschluss des alten Dorfkern, bzw. als Übergang zur Kreuzungsstelle verstanden.
Client:
privat
Location:
Dorfstrasse 2, 6072 Sachseln
Date:
01. June 1997
