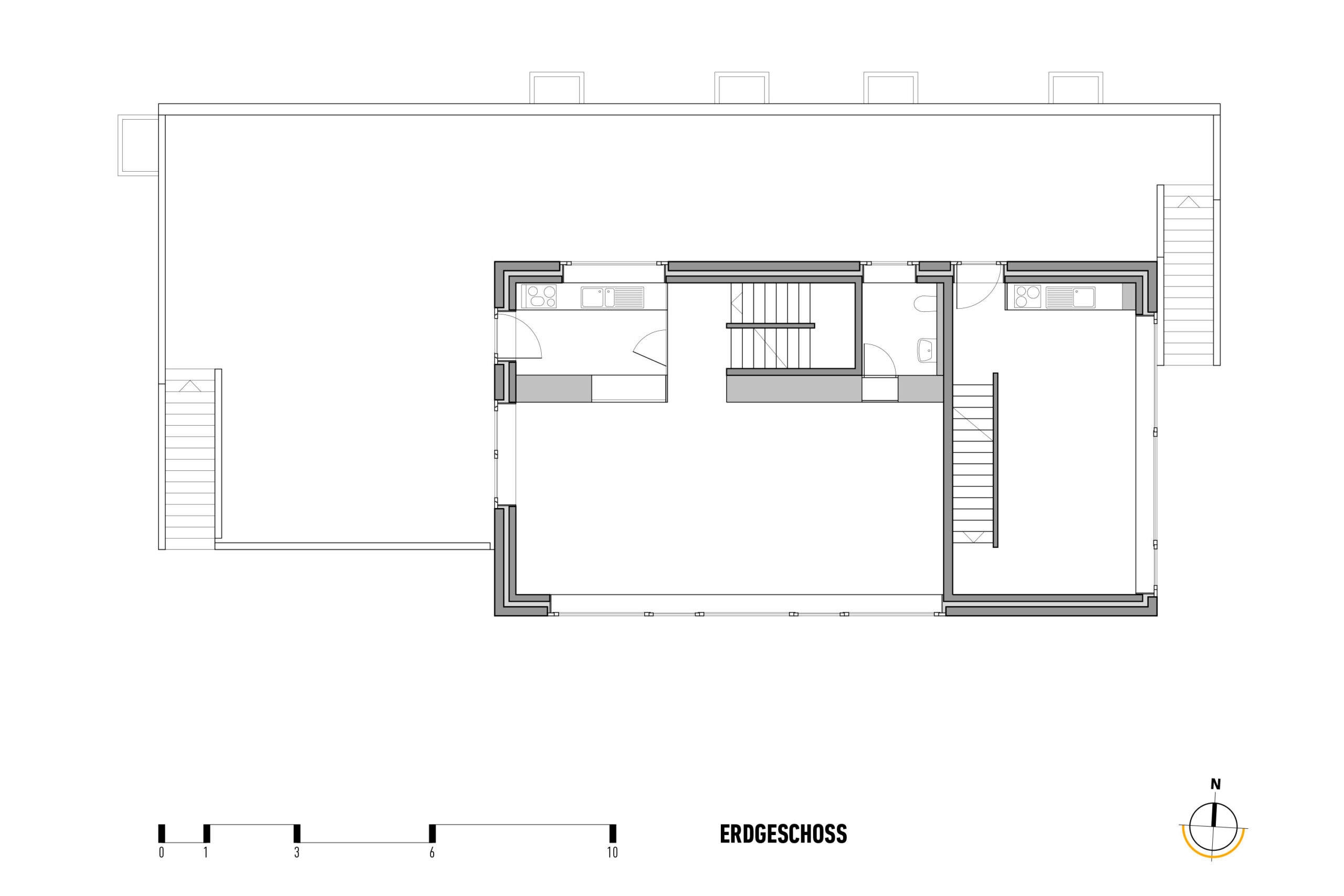
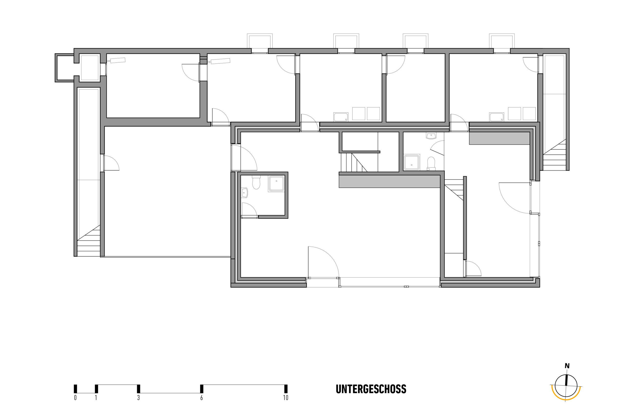
Hoharai, Felsberg
Zusammenarbeit mit Daniel Mettler
Weitere Unterlagen und Angaben folgen…
Client:
privat
Location:
Taminserstrasse 100, 7012 Felsberg
Date:
14. April 1994
Zusammenarbeit mit Daniel Mettler
Weitere Unterlagen und Angaben folgen…
privat
Taminserstrasse 100, 7012 Felsberg
14. April 1994